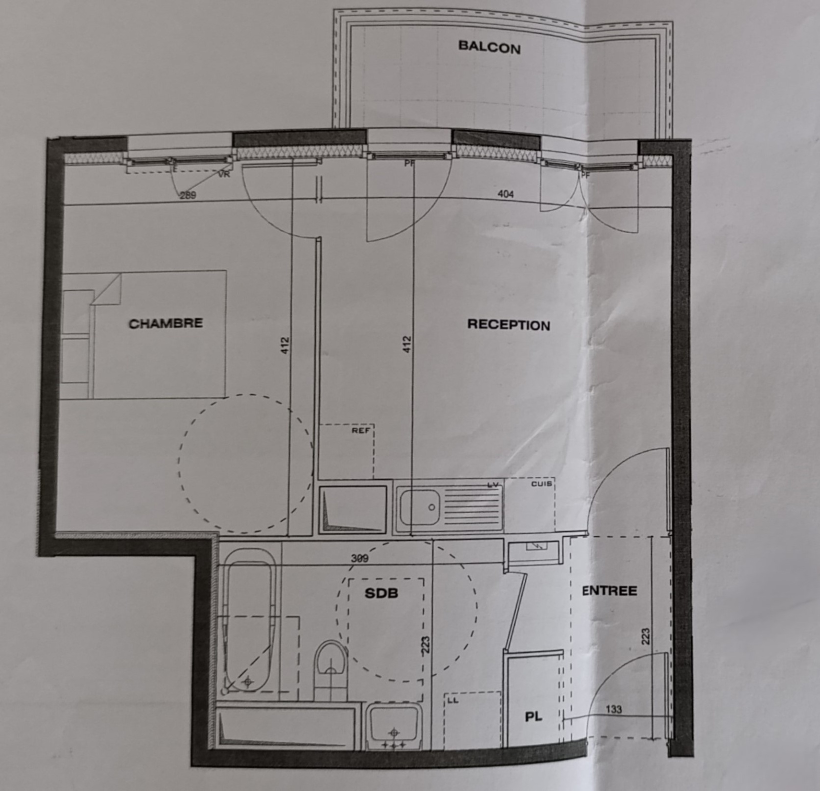
Appartement 2 pièce(s) 1 chambre(s) 38.23 m²
Le Blanc-Mesnil (93150)Caractéristiques de ce bien
- Surface 38,23 m²
- carrez 38,23 m²
- séjour 16,18 m²
- 1 chambre(s)
- 1 salle(s) de bain
- construit en 2017
- cuisine américaine (équipée)
- Chauffage collectif : radiateur (géothermie)
- 1 garage(s)
- 1 niveau(x)
- 1er étage
- 4 étage(s)
- ascenseur
- vue coté jardin
- balcon
- visiophone
- interphone
- accès handicapé
A propos de ce bien
Actif'immo vous propose, dans une résidence moderne et bien située, un charmant appartement de type F2. Ce bien de 2017 bénéficie d’une configuration fonctionnelle et agréable, idéale pour un premier achat. L'appartement se compose d’une entrée avec placard, une pièce de vie lumineuse avec cuisine américaine aménagée, ouvrant sur un balcon, une belle chambre spacieuse, une grande salle de bains avec toilettes, un garage en sous-sol, offrant un espace de stockage supplémentaire Vous apprécierez la qualité de la construction et la performance énergétique de ce bien, classé en Classe Énergie B.
À proximité des commodités, cet appartement est un choix parfait pour allier confort et modernité. N'attendez plus pour le visiter !
Composition du bien
Rez-de-chaussée
- chambre 11.81 m²
- salon/sejour 16.16 m²
- salle de bain 6.07 m²
